Residência Vila Leopoldina
- André Yuri Chukr Avila

- 31 de ago. de 2023
- 2 min de leitura

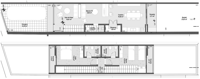
Memorial Do telhado à laje jardim. Um pequeno e estreito terreno, com uma construção em ruinas é o cenário deste projeto. Ao visitar o local ficou claro, que o ideal seria demolir a antiga construção e construir uma nova casa, ocupando de forma inteligente e racional o estreito lote na Vila Leopoldina. Para que a casa se adaptasse ao morar contemporâneo a estrutura antiga foi demolida e foram mantidas apenas as alvenarias lindeiras ao lote, que são feitas de tijolo maciço e tinham função estrutural. Após a demolição, o lote urbano que mede 4x24 metros foi ocupado com o novo programa que se dividiu em três níveis: térreo, superior e cobertura jardim. No térreo a interpretação da organização espacial é clara, o diálogo entre a cozinha, sala de estar, jardim é franco, livre de fechamentos verticais. O percurso se inicia no recuo frontal em que o paisagismo torna a chegada a casa sedutora. O acesso ao sobrado se dá a partir de porta pivotante e caixilho de correr, que quando abertos por completo propiciam a extensão da área social. A mesa de jantar junto a cozinha e do outro lado a circulação de quem vai à área de estar, onde juntos, os ambientes possuem uma integração completa do pavimento térreo com os fundos da casa. O percurso até o pavimento superior acontece a partir da escada executada em um só lance, com um design sofisticado e degraus soltos no início, para proporcionar mais leveza. O pavimento superior se divide entre duas suítes. A escada se estende até a cobertura, que é acessada a partir de um hall coberto. A nova estrutura somada ao piso elevado para a passagem da infraestrutura possibilitou a instalação de um gramado com jardim e horta no mesmo nível do deck em madeira. A lavanderia e os equipamentos de infraestrutura resolvem-se em um volume que pode ser aberto ou fechado por portas metálicas perfuradas do tipo camarão.
Ficha Técnica
Projeto: André Ávila Arquitetura _ Luis Canepa Arquitetos Status: concluída Local: Vila Leopoldina, São Paulo Área projetada: 140m²
Ano: 2021
Fotos: Guilherme Pucci




























